Biệt thự Bason The Victoria là một trong những căn biệt thự đắt giá nhất tại TP.HCM, nằm trong khu đô thị Vinhomes Golden River tại trung tâm phường Bến Nghé, Quận 1. Với 2 mặt tiền lớn là đường Tôn Đức Thắng và đường Nguyễn Hữu Cảnh, ôm trọn bờ sông Sài Gòn thơ mộng hướng nhìn sang khu đô thị Thủ Thiêm.
Mặt bằng dự án Vinhomes Golden River tại Bason, Bến Nghé, Quận 1.
TỔNG QUAN BIỆT THỰ THE VICTORIA
The Victoria Vinhomes Golden River còn được kết nối với bến du thuyền siêu sang 5 sao và tuyến Metro số 1 – Bến Thành – Suối Tiên, giúp cư dân di chuyển thuận tiện và liên kết với trung tâm thành phố và các quận lân cận.
| Tên thương mại: | The Victoria. |
| Số căn: | 63 căn. |
| Loại hình: | Biệt thự đơn lập và biệt thự song lập. |
| Biệt thự đơn lập | |
| Số lượng: | 9 căn. |
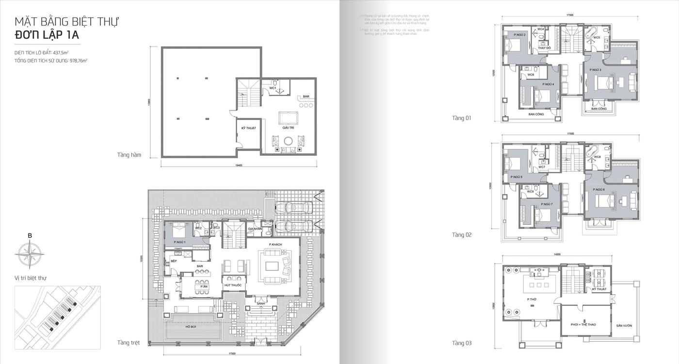
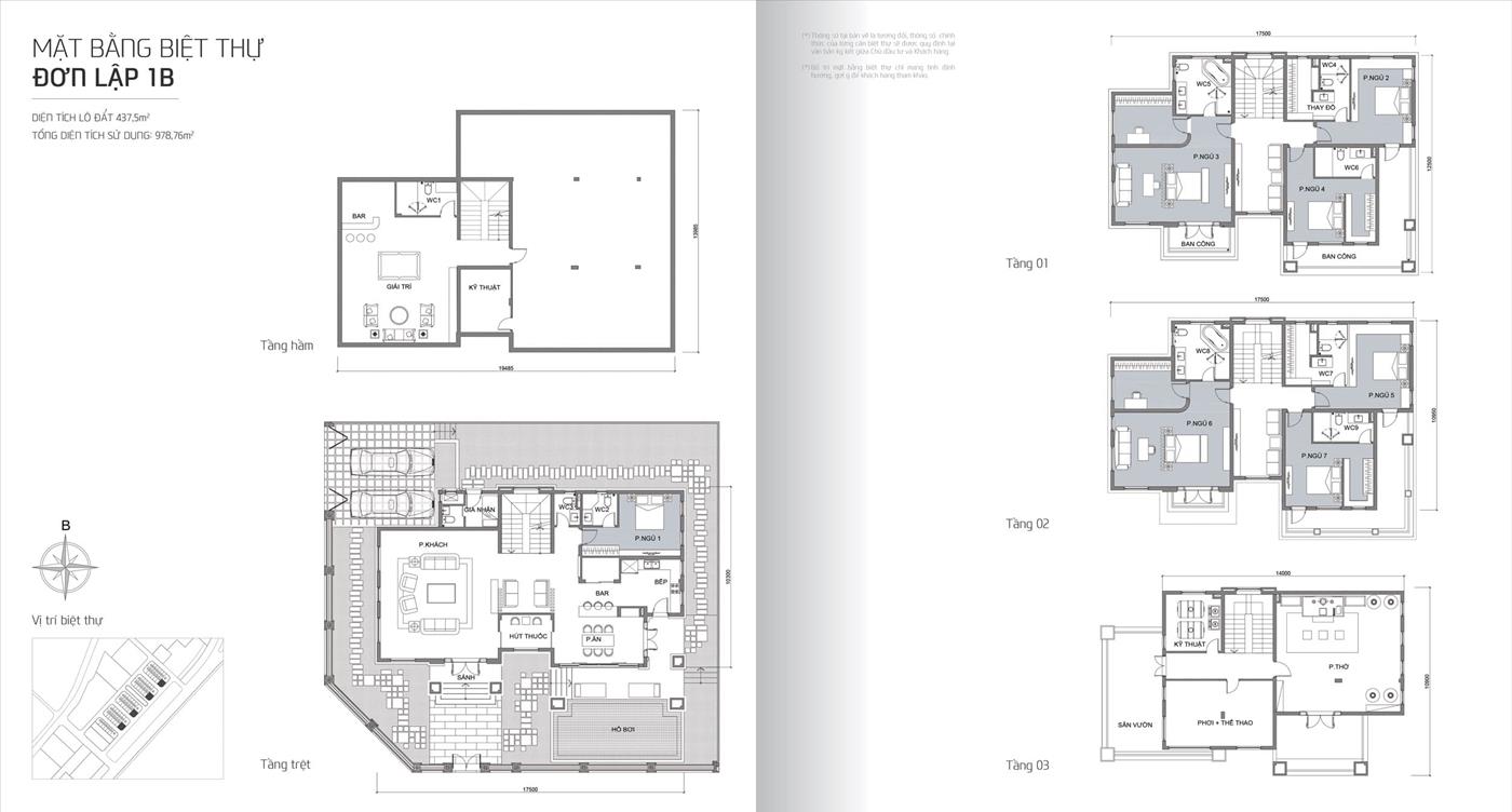
| Diện tích đất: | 437.5m2. |
| Diện tích xây dựng: | 978.76m2. |
| Biệt thự song lập | |
| Số lượng: | 54 căn. |
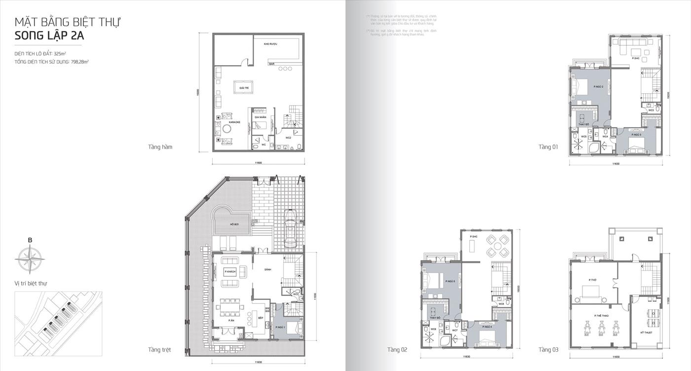
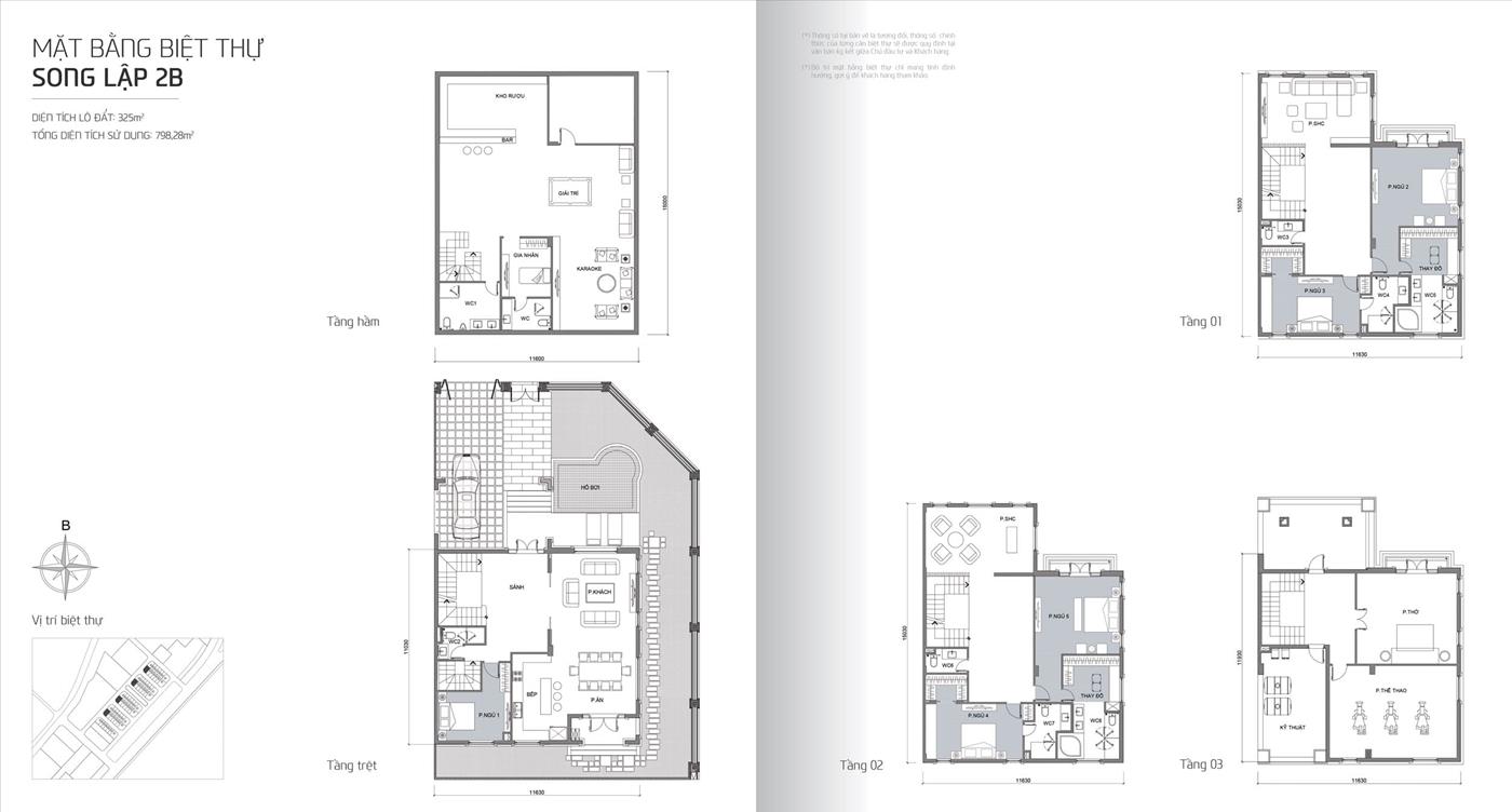
| Diện tích đất: | Từ 225m2 – 325m2. |
| Diện tích xây dựng: | Từ 546.13m2 – 798.28m2. |
| Chiều cao: | 5 tầng gồm có 1 tầng hầm, tầng trệt, tầng 2, tầng 3 và tầng tum. |
| Phong cách: | Tân cổ điển. |
| Sở hữu: | Được cấp sổ hồng sở hữu lâu dài. |
MẶT BẰNG BIỆT THỰ THE VICTORIA
Khu vực trên đường đi bộ ven sông và khu công viên cây xanh cũng mang lại môi trường sống an bình, mát mẻ và không ồn ào, khói bụi cho cư dân của The Victoria, giữa lòng TP.HCM sôi động và nhộn nhịp.
Layout biệt thự The Victoria Bason tại dự án Vinhomes Golden River.
Toàn bộ khu biệt thự Bason trang bị các giải pháp hiện đại nhằm mang đến cho các gia chủ môi trường sống thân thiện, trong lành gồm: hệ thống điện dự phòng, wifi phủ sóng toàn khu, hệ thống xử lý nước thải hiện đại, rác thải và côn trùng được xử lý thường xuyên và hệ thống lọc nước sinh hoạt uống tại vòi đạt tiêu chuẩn châu Âu.
BIỆT THỰ ĐƠN LẬP THE VICTORIA
Mặt bằng biệt thự Bason The Victoria mẫu Đơn Lập 1A.
Mặt bằng biệt thự Bason The Victoria mẫu Đơn Lập 1B.
BIỆT THỰ SONG LẬP THE VICTORIA
Mặt bằng biệt thự Bason The Victoria mẫu Song Lập 1A.
Mặt bằng biệt thự Bason The Victoria mẫu Song Lập 1B.
Mặt bằng biệt thự Bason The Victoria mẫu Song Lập 2A.
Mặt bằng biệt thự Bason The Victoria mẫu Song Lập 2B.
HÌNH ẢNH PHỐI CẢNH THE VICTORIA






PHỐI CẢNH NỘI THẤT BIỆT THỰ


















HÌNH ẢNH THỰC TẾ BIỆT THỰ BASON














